Aller au contenu principal
Veuillez patienter...
PR-NC0500P-OPL-1X-XX-GASB-AM
MONTE-CHARGES PRACTICO - INSTALLATION SELON DIRECTIVE MACHINES AVEC PREPOSE A BORD - CABINE SANS PORTES - PORTES-GUILLOTINES A CLAIRE VOIE AUX ETAGES

Norme européenne Directive Machines - 2006/42/CE
... ...
Modèle PRACTICO - AVEC PORTES-GUILLOTINES A CLAIRE VOIE
Charge 500 kg
Dimensions Petit
Type de gaine Gaine en maçonnerie
Accès à cabine Accès simple
Type de portes de cabine Sans porte
Type de portes d’étage Porte-guillotine à claire voie
Position des portes En porte-à-faux dans la gaine
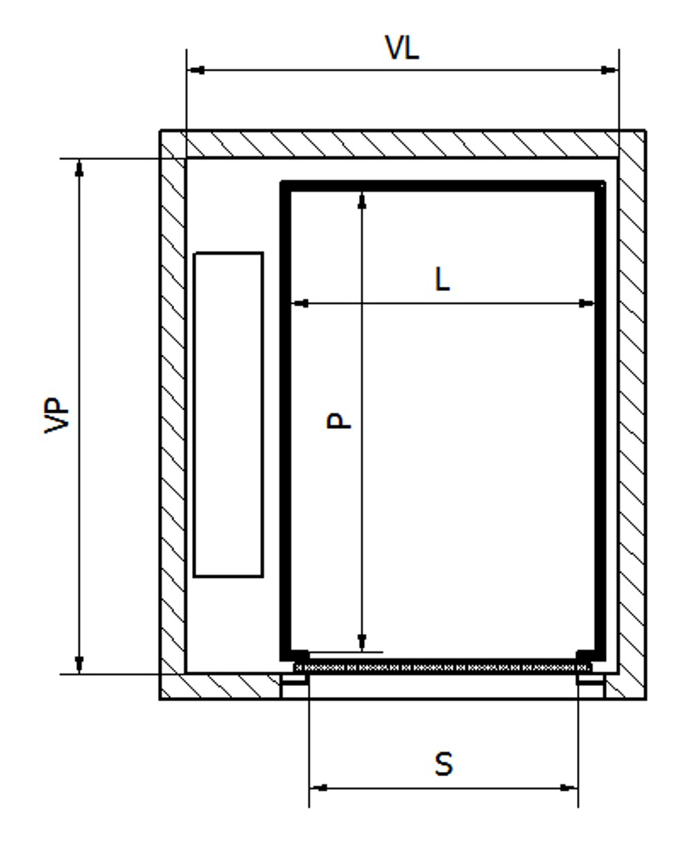
Largeur de cabine (L) 1000 mm
Profondeur de cabine (P) 2500 mm
Ouverture des portes (S) 1000 mm
Largeur gaine intérieure (VL) 1600 mm
Profondeur gaine intérieure (VP) 2750 mm
Hauteur de cabine (H) 2000 mm
Cuvette (FH)
  • Standard
Placeholder
  • 1100 mm
Tête (TH)
  • Standard
Placeholder
  • 3100 mm
Remarques
  • Données valables pour installations avec équipements standards.
  • Vitesse 0,15 m/s.
  • ELMA se réserve le droit de modifier les données de ce fiche technique, sans préavis.
Révision
00/12 PE01/      /      / M

Cette fiche est disponible sur le site www.elmaonline.it

About

We are professional and reliable provider since we offer customers the most powerful and beautiful themes. Besides, we always catch the latest technology and adapt to follow world’s new trends to deliver the best themes to the market.