Aller au contenu principal
Veuillez patienter...
EL-NR0500X-ONL-2C-TX-TXSB-MA
ELEVATEUR AUXILIA 3 AVEC PORTES D’ETAGE ET DE CABINE AUTOMATIQUES - MANŒUVRE AUTOMATIQUE.

... ...
Modèle AUXILIA 3 - MANŒUVRE AUTOMATIQUE
Charge 500 kg
Capacité 6 persone
Dimensions Maxi
Type de gaine Gaine métallique pour intérieur
Accès à cabine Deux accès opposés
Type de portes de cabine Télescopique
Type de portes d’étage Télescopique
Position des portes En porte-à-faux dans la gaine
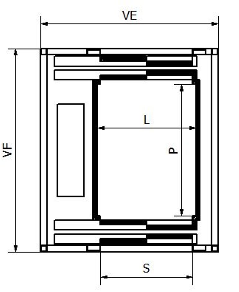
Largeur de cabine (L) 1400 mm
Profondeur de cabine (P) 1400 mm
Ouverture des portes (S) 800 mm
Larghezza vano esterno (VE) 2000 mm
Profondità vano esterno (VF) 1960 mm
Hauteur de cabine (H) 2000 mm
Cuvette (FH)
  • Standard
  • Réduite
Placeholder
  • 250 mm
  • 150 mm
Tête (TH)
  • Standard
  • Réduite
Placeholder
  • 2700 mm
  • 2400 mm
Largeur zone de sortie 1500 mm
Profondeur zone de sortie 1500 mm
Remarques
  • Données valables pour installations avec équipements standards.
  • Vitesse 0,15 m/s.
  • ELMA se réserve le droit de modifier les données de ce fiche technique, sans préavis.
Révision
03/20 GA01/      / SC01 / A

Cette fiche est disponible sur le site www.elmaonline.it

About

We are professional and reliable provider since we offer customers the most powerful and beautiful themes. Besides, we always catch the latest technology and adapt to follow world’s new trends to deliver the best themes to the market.