Direkt zum Inhalt
Bitte warten...
PR-NC1000M-OPL-2C-XX-GASB-AM
LASTENAUFZÜGE PRACTICO - ANLAGE GEMÄSS MASCHINENRICHTLINIE MIT MITFAHRENDER BEDIENPERSON - KABINE OHNE TÜREN - ETAGENTÜREN ALS LAUFTORE

europäischer Standard Maschinenrichtlinie - 2006/42/EG
... ...
Modell PRACTICO - MIT LAUFTOREN
Tragfähigkeit 1000 kg
Maße Mittel
Schachtbeschaffenheit Gemauerter Schacht
Kabinenzutritte Zwei gegenüberliegende Zugänge
Art der Kabinentüren Ohne Türen
Art der Etagentüren Lauftor
Türposition Freitragend im Schacht
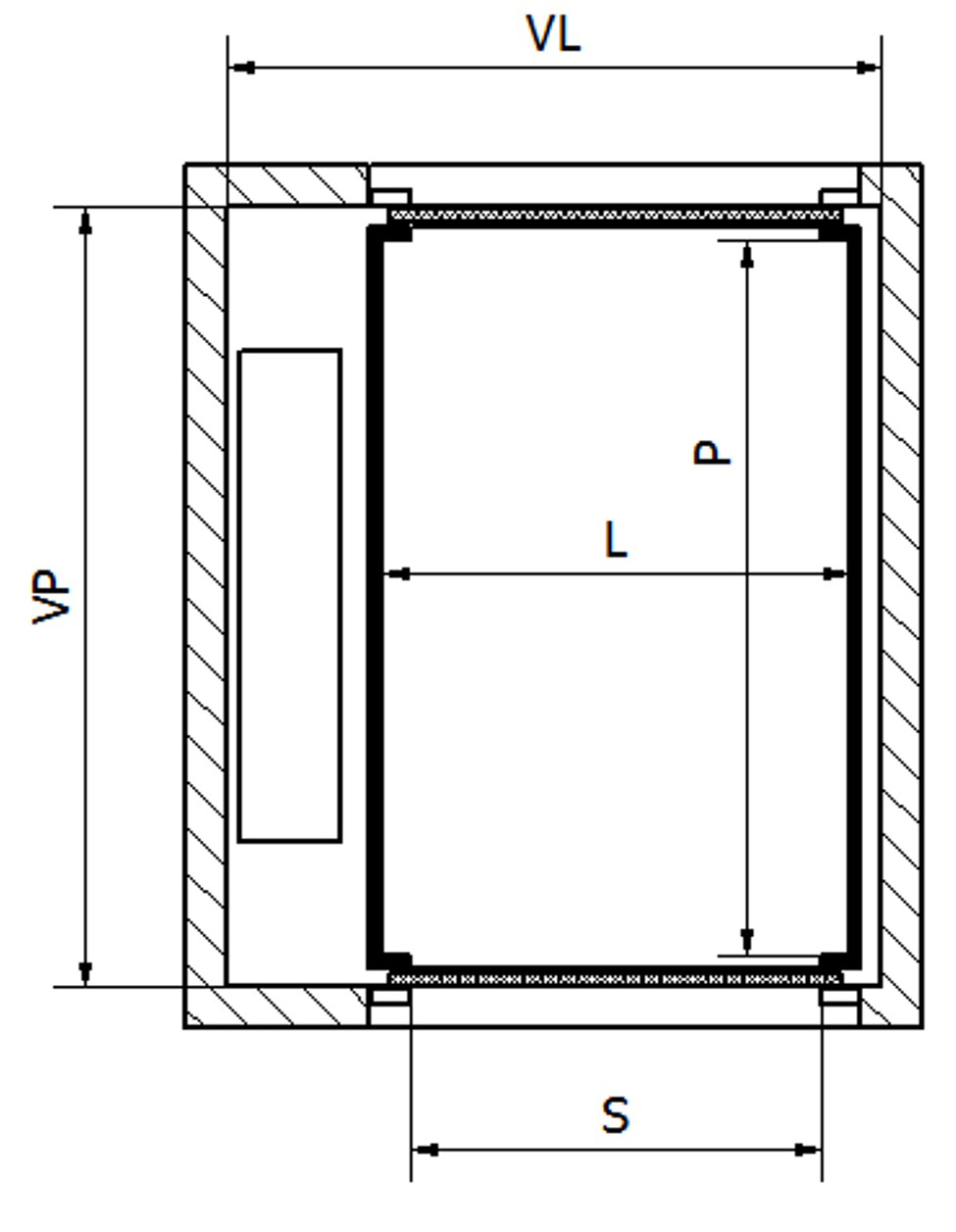
Kabinenbreite (L) 1500 mm
Kabinentiefe (P) 3000 mm
Türöffnungsweite (S) 1500 mm
Interne Schachtbreite (VL) 2100 mm
Interne Schachttiefe (VP) 3250 mm
Kabinenhöhe (H) 2000 mm
Schacht (FH)
  • Standard
  • Verringert
Placeholder
  • 1200 mm
  • 1100 mm
Schachtkopf (TH)
  • Standard
Placeholder
  • 3100 mm
Anmerkungen
  • Daten gültig für Anlagen mit Standardausrüstung.
  • Geschwindigkeit 0,15 m/s.
  • ELMA behält sich vor, die Daten auf diesem Datenblatt ohne vorherige Ankündigung zu verändern.
Inspektion
00/12 PF01/      /      / M

Dieser Plan steht auf der Seite www.elmaonline.it zur Verfügung.

About

We are professional and reliable provider since we offer customers the most powerful and beautiful themes. Besides, we always catch the latest technology and adapt to follow world’s new trends to deliver the best themes to the market.