Direkt zum Inhalt
Bitte warten...
AS-RI0525I-SSX-2A-TX-TXSB-AM
AUFZUG SLIM - ELEKTRISCH, MIT SEITLICHER AUFHÄNGUNG, MIT MASCHINENRAUM ÜBER DEM SCHACHT

Nationale Vorschrift Italienisches Gesetz 13/1989 - Erlass des Ministeriums für Öffentliche Arbeiten 236/1989 - Renoviertes Gebäude
Sonstige nationale Vorschrift Dekret des Präsidenten der Republik Italien 503/1996
Präzisierungen Außer renovierte Gebäude in der Provinz Bozen
... ...
Modell SLIM ELEKTRISCH
Tragfähigkeit 525 kg
Fassungsvermögen 7 Personen
Schachtbeschaffenheit Gemauerter Schacht
Kabinenzutritte Zwei im Winkel zueinander stehende Zugänge
Art der Kabinentüren Ausfahrbar
Art der Etagentüren Ausfahrbar
Türposition Freitragend im Schacht
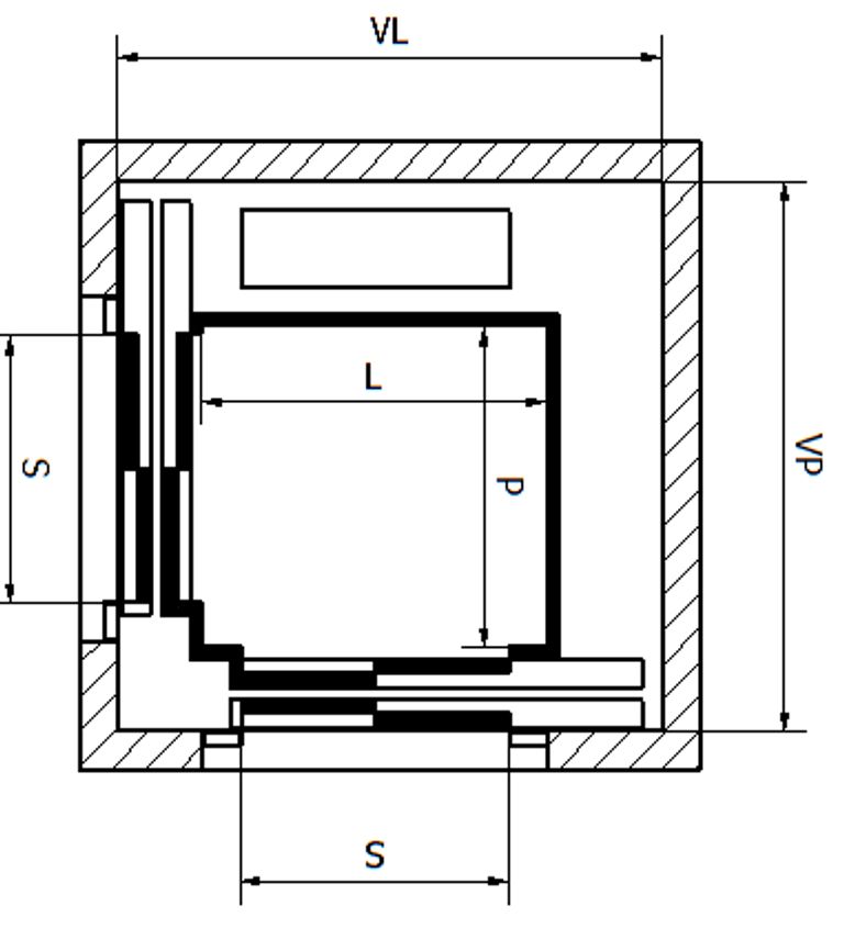
Kabinenbreite (L) 1200 mm
Kabinentiefe (P) 1200 mm
Türöffnungsweite (S) 750 mm
Interne Schachtbreite (VL) 1600 mm
Interne Schachttiefe (VP) 1900 mm
Kabinenhöhe (H) 2130 mm
Schacht (FH)
  • Standard
  • Verringert
  • Abweichend (für die Errichtung ist eine Bewilligung notwendig)
Placeholder
  • 1200 mm
  • 1000 mm
  • 500 mm
Schachtkopf (TH)
  • Standard
  • Abweichend (für die Errichtung ist eine Bewilligung notwendig)
Placeholder
  • 3500 mm
  • 2500 mm
Breite des Ladebereichs 1400 mm
Tiefe des Ladebereichs 1400 mm
Anmerkungen
  • Daten gültig für Anlagen mit Standardausrüstung.
  • Geschwindigkeit bis zu 1,40 m/s.
  • ELMA behält sich vor, die Daten auf diesem Datenblatt ohne vorherige Ankündigung zu verändern.
Inspektion
04/26 AD11/      / SB01 / B

Dieser Plan steht auf der Seite www.elmaonline.it zur Verfügung.

About

We are professional and reliable provider since we offer customers the most powerful and beautiful themes. Besides, we always catch the latest technology and adapt to follow world’s new trends to deliver the best themes to the market.