Direkt zum Inhalt
Bitte warten...
EL-RI0250M-ORL-2C-TX-TXSB-MA
PATTFORMAUFZUG AUXILIA 3 - MIT AUTOMATISCHEN ETAGEN- UND KABINENTÜREN - AUTOMATISCHE STEUERUNG

Nationale Vorschrift Italienisches Gesetz 13/1989 - Erlass des Ministeriums für Öffentliche Arbeiten 236/1989 - Renoviertes Gebäude
... ...
Modell AUXILIA 3 - AUTOMATISCHE STEUERUNG
Tragfähigkeit 250 kg
Fassungsvermögen 3 Personen
Maße Mittel
Schachtbeschaffenheit Metallschacht für Innennutzung
Kabinenzutritte Zwei gegenüberliegende Zugänge
Art der Kabinentüren Ausfahrbar
Art der Etagentüren Ausfahrbar
Türposition Freitragend im Schacht
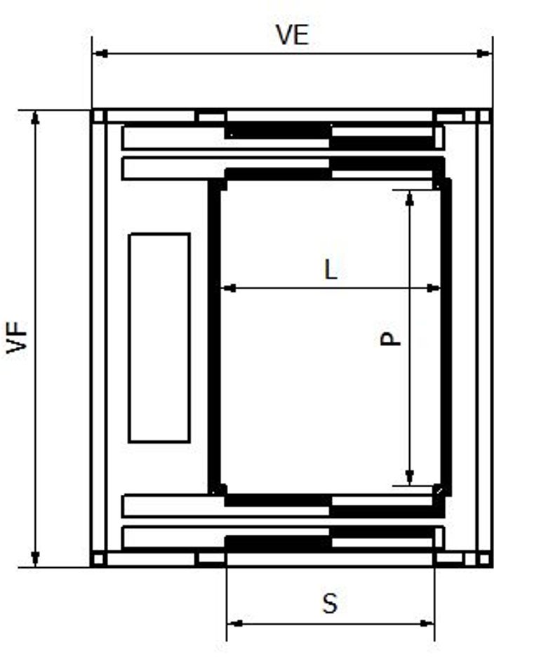
Kabinenbreite (L) 800 mm
Kabinentiefe (P) 1200 mm
Türöffnungsweite (S) 800 mm
Larghezza vano esterno (VE) 1550 mm
Profondità vano esterno (VF) 1700 mm
Kabinenhöhe (H) 2000 mm
Schacht (FH)
  • Standard
  • Verringert
Placeholder
  • 250 mm
  • 150 mm
Schachtkopf (TH)
  • Standard
  • Verringert
Placeholder
  • 2700 mm
  • 2400 mm
Breite des Ladebereichs 1400 mm
Tiefe des Ladebereichs 1400 mm
Anmerkungen
  • Daten gültig für Anlagen mit Standardausrüstung.
  • Geschwindigkeit 0,15 m/s.
  • ELMA behält sich vor, die Daten auf diesem Datenblatt ohne vorherige Ankündigung zu verändern.
Inspektion
03/20 GA01/      / SC01 / A

Dieser Plan steht auf der Seite www.elmaonline.it zur Verfügung.

About

We are professional and reliable provider since we offer customers the most powerful and beautiful themes. Besides, we always catch the latest technology and adapt to follow world’s new trends to deliver the best themes to the market.