Direkt zum Inhalt
Bitte warten...
ML-EP1850X-ECL-2C-TX-TXSB-AM
AUFZUG ECOLIFT MONOVANO - ELEKTRISCH, OHNE MASCHINENRAUM

Nationale Vorschrift Italienisches Gesetz 13/1989 - Erlass des Ministeriums für Öffentliche Arbeiten 236/1989 - Gebäude ohne Wohnzweck
Lokale Vorschrift Regionales Gesetz der Lombardei 6/1989 - Öffentliches Gebäude
... ...
Steuerschrank normalerweise in der obersten Etage. Bei EI (Feuerwiderstand-Klasse) - Etagentüren wenden Sie sich bitte an ELMA.
...
Modell ECOLIFT MONOVANO
Tragfähigkeit 1850 kg
Fassungsvermögen 24 Personen
Maße Maxi
Schachtbeschaffenheit Gemauerter Schacht
Kabinenzutritte Zwei gegenüberliegende Zugänge
Art der Kabinentüren Ausfahrbar
Art der Etagentüren Ausfahrbar
Türposition Freitragend im Schacht
Kabinenbreite (L) 1500 mm
Kabinentiefe (P) 2600 mm
Türöffnungsweite (S) 1300 mm
Interne Schachtbreite (VL) 2400 mm
Interne Schachttiefe (VP) 3150 mm
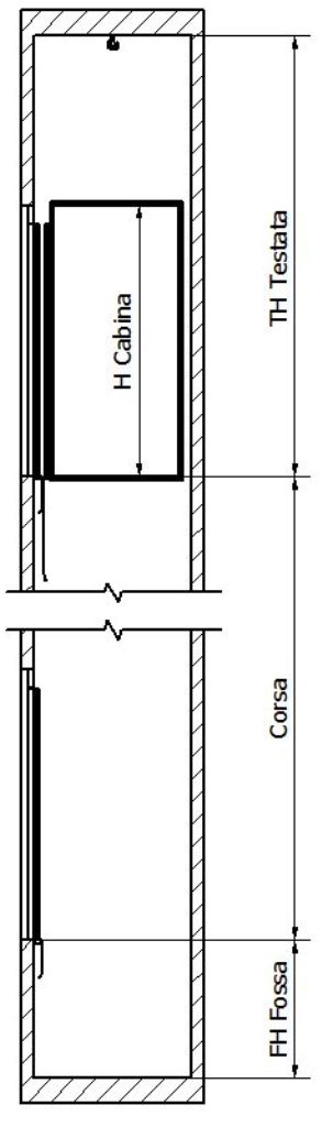
Kabinenhöhe (H) 2130 mm
Schacht (FH)
  • Standard
Placeholder
  • 1500 mm
Schachtkopf (TH)
  • Standard
Placeholder
  • 3700 mm
Breite des Ladebereichs 1500 mm
Tiefe des Ladebereichs 1500 mm
Anmerkungen
  • Daten gültig für Anlagen mit Standardausrüstung.
  • Geschwindigkeit bis zu 1,40 m/s.
  • Für Aufzüge mit Brandschutz laut Italienischem Ministerialerlass 15/0972005, wenden Sie sich bitte an ELMA.
  • ELMA behält sich vor, die Daten auf diesem Datenblatt ohne vorherige Ankündigung zu verändern.
Inspektion
03/20 BA01/ RC01 / SA01 / A

Dieser Plan steht auf der Seite www.elmaonline.it zur Verfügung.

About

We are professional and reliable provider since we offer customers the most powerful and beautiful themes. Besides, we always catch the latest technology and adapt to follow world’s new trends to deliver the best themes to the market.